山东金科电气股份有限公司
山东金科电气股份有限公司
H级非包封三相干式配电变压器

H级非包封三相干式配电变压器

2024-4-26 本文被阅读 1678 次

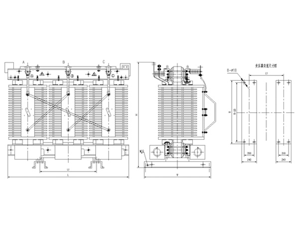
h级非包封三相干式配电变压器1

型号说明 Model specification

h级非包封三相干式配电变压器2

10kV级SG(B)系列非包封三相干式配电变压器

10kV SG(B) Series Non encapsulated Three-phase Dry Type  Distribution Transformer


h级非包封三相干式配电变压器3

h级非包封三相干式配电变压器4

h级非包封三相干式配电变压器5

h级非包封三相干式配电变压器6


注:表中提供的外形尺寸及重量仅供参考,请以订货时提供的外形尺寸图为准。    


H级非包封三相干式配电变压器
上一条:硅橡胶三相干式配电变压器下一条:山东省民营科技企业

山东金科电气股份有限公司
鲁ICP备19031904号-1

  • 首页

    首页

  • 产品

    产品

  • 询价

    询价

  • 电话

    电话

  • Top