
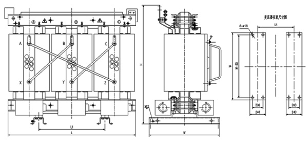
20kV级SC(B)系列三相干式配电变压器
20kV SC(B) Series Three-phase Dry Type Distribution Transformer




注:表中提供的外形尺寸及重量仅供参考,请以订货时提供的外形尺寸图为准。
20kV级SC(B)系列三相干式配电变压器
| 上一条:10kV级SC(B)Z系列三相干式有载调压配电变压器 | 下一条:山东省民营科技企业 |


20kV级SC(B)系列三相干式配电变压器
20kV SC(B) Series Three-phase Dry Type Distribution Transformer




注:表中提供的外形尺寸及重量仅供参考,请以订货时提供的外形尺寸图为准。
| 上一条:10kV级SC(B)Z系列三相干式有载调压配电变压器 | 下一条:山东省民营科技企业 |